Столешница Allen Brau Priority Structure 115 см (1.31012.G-S)
КОМПЛЕКТАЦИЯ

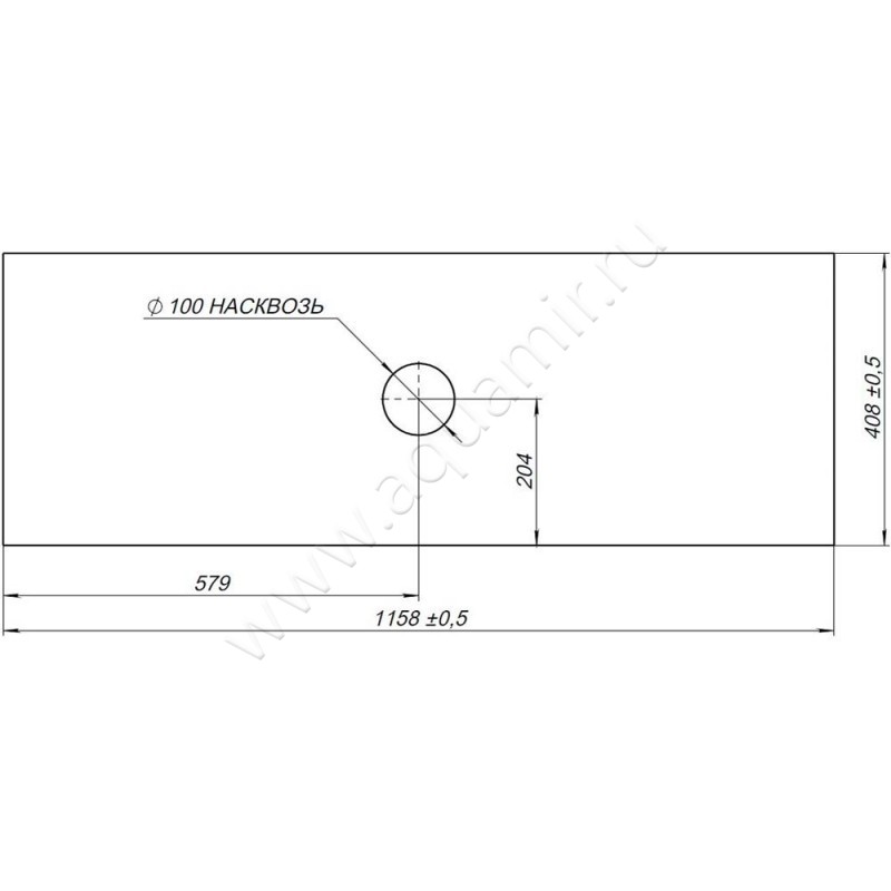
Столешница Allen Brau Priority Structure 115 см (1.31012.G-S)
Размеры (ш.в.г.) - 115,8x1x40,8 см.
Размеры (ш.в.г.) - 115,8x1x40,8 см.
13 675 9 572 

Тумбы для ванной комнаты
Тумба под раковину Allen Brau Priority 120 см, черный матовый (1.31004.AM)
Размеры (ш.в.г.) - 120x75x45 см.
Размеры (ш.в.г.) - 120x75x45 см.
105 099 73 569 

Тумба под раковину Allen Brau Priority 120 см, зеленый матовый/папирус (1.31004.PWM)
Размеры (ш.в.г.) - 120x75x45 см.
Размеры (ш.в.г.) - 120x75x45 см.
105 099 73 569 

СМОТРИТЕ ТАКЖЕ
Все рекомендации (289)
Еще из коллекции Priority (289)
Душевые шланги (6)
Гигиенические души (11)
Бумагодержатели (3)
Стаканы для зубных щеток (8)
Мыльницы (6)
Ершики для унитаза (6)
Дозаторы для мыла (диспенсеры) (4)
Полотенцедержатели (9)
Полки в ванную комнату (11)
Душевые гарнитуры (6)
Бачки для унитазов (1)
Вехний душ (3)
Смесители (48)
Зеркала в ванную (20)
Душевые поддоны (65)
Тумбы под раковину (8)
Ванны (14)
Клавиши смыва (6)
Крючки для полотенец (3)
Душевые лейки (1)
Душевые комплекты (6)
Крышки-сидения для унитазов (3)
Столешницы (23)
Шкафы-пеналы (2)
Унитазы (12)
Биде (1)
Комплектующие для поддонов (3)
Унитаз подвесной Allen Brau PRIORITY с крышкой микролифт, 54,5 см, безободковый, серый матовый
Скидка
25%
25%

Комплект: 2 товара
Унитаз подвесной Allen Brau PRIORITY с крышкой микролифт, 49 см, безободковый, серый матовый
Скидка
25%
25%

Комплект: 2 товара
Тумба под раковину Allen Brau Priority 70 см, зеленый матовый/папирус (1.31001.PWM)
Скидка
30%
30%
Новинка
NEW
NEW

Доставка бесплатно
Доставка бесплатно
Показать еще (236)














