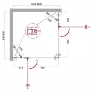
Душевой уголок BelBagno KRAFT (KRAFT-AH-22-120/90-C-Cr-L)
СМОТРИТЕ ТАКЖЕ
Все рекомендации (233)
Еще из коллекции Kraft (233)
Тумбы под раковину (113)
Шкафы-пеналы (18)
Раковины (3)
Душевые уголки (46)
Зеркала в ванную (45)
Душевые двери в нишу (8)
Показать еще (219)












