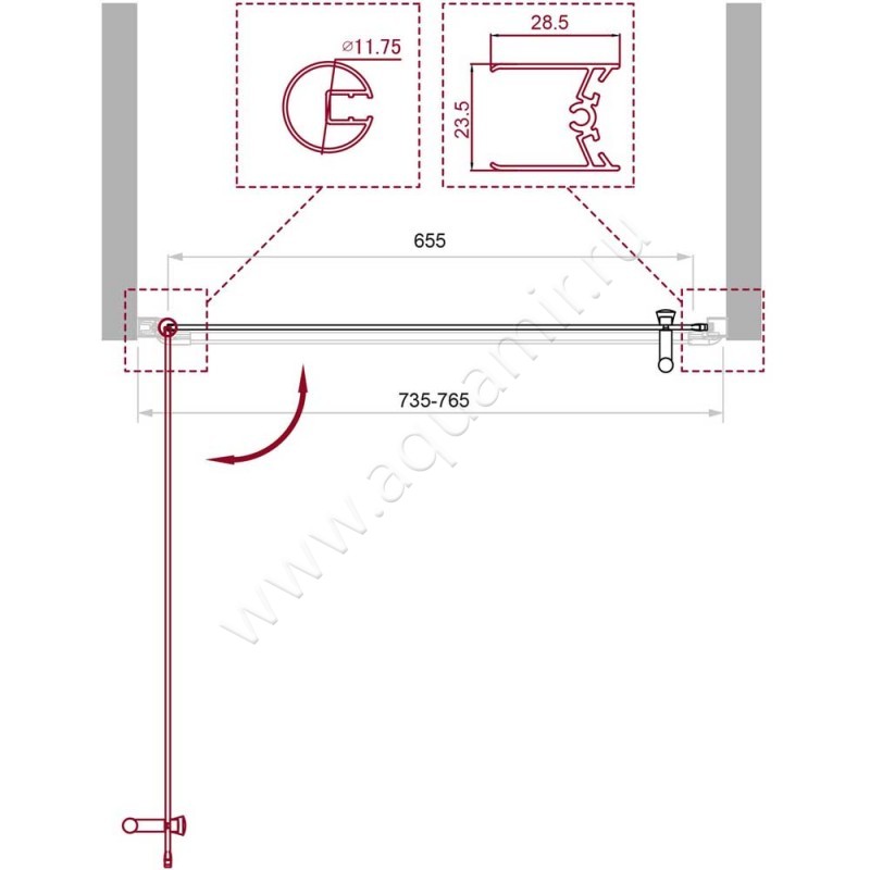
Душевая дверь в нишу BelBagno UNO (UNO-B-1-75-C-Cr)
СМОТРИТЕ ТАКЖЕ
Все рекомендации (90)
Еще из коллекции Uno (90)
Шторки для ванной (12)
Душевые двери в нишу (37)
Душевые стойки (3)
Смесители (13)
Душевые гарнитуры (3)
Душевые уголки (11)
Унитазы (4)
Зеркала в ванную (7)
Комплект унитаза с инсталляцией BelBagno UNO с крышкой микролифт, 48,2 см, белый
Скидка
0%
0%
Новинка
NEW
NEW

Комплект: 3 товара
Показать еще (72)






